E
E
Beautiful Andalucian 2 storey cortijo with 4 bedrooms and 3 bathrooms. It has been lovingly restored keeping the traditional features such as exposed wooden beams throughout the houes and original anforas (tinajas), antique wooden floor in the lounge. Immaculately presented, it also features a large entertaining/summer room with bar area, private walled courtyard (the hot tub seen in pictures is not included) and store room; BBQ, pergola, car port, garden shed, garden area with artificial grass around a 6 x 4 metres swimming pool, beautiful landscaped and easily maintained gardens with mature trees, shrubs and plants to the rear of the property insterspersed with gravel and seating areas and a terrace with a gazebo, L-shape sofa and a water feature. Amazing views to the surrounding mountains and countryside. Set in around 4,4 hectares of land with approximately 60 mature olive trees. Situated right on the border between Lorca (Murcia Region) and Velez-Blanco (Almeria province) but officially registered under Lorca (Murcia region), with excellent access off a tarmac road, and only a short drive (10 mins) from the historical and market town of Velez Rubio, with a wider range of shops, banks, bars, a weekly market, 24h health centre, etc. The property enjoys absolute full privacy.
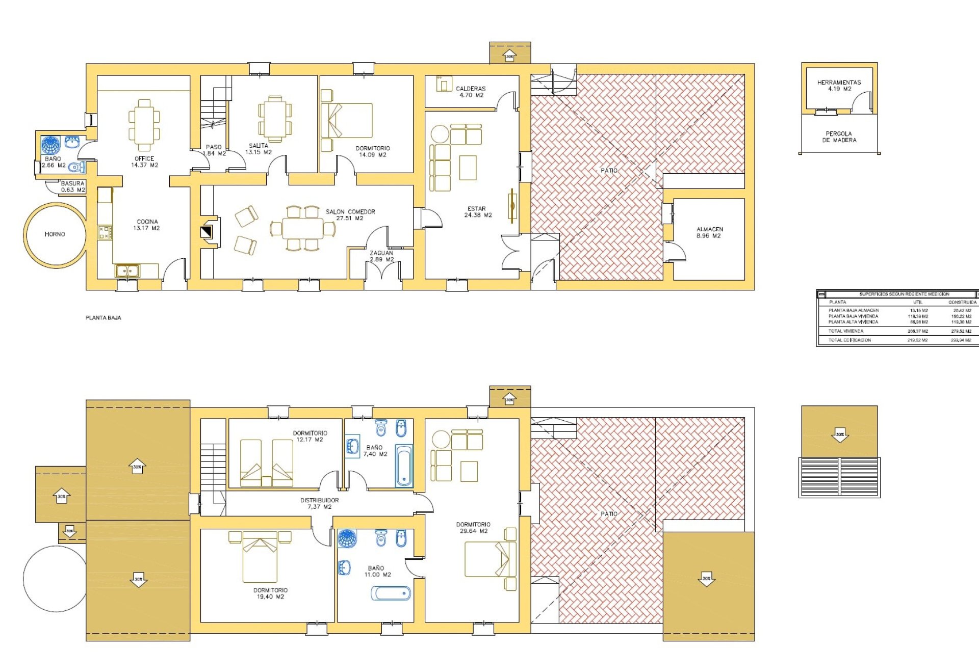
Total built area: 300 m2 plus swimming pool (32 m2).
Mains water and electricity.
Access is tarmac all the way to the house. Then a driveway leads to the car port and front of the property laid to gravel. Further along the facade is a low walled terrace with a BBQ and a pergola.
HOME SPECIFICATIONS:
Front door leading into the beautiful Andalucian country style kitchen with adjacent breakfast room. The kitchen is fitted with granite worktops, gas range cooker, fridge-freezer, dishwasher, microwave. A step up from the kitchen is the kitchen table area /breakfast room with 5 old tinajas/anforas embedded into the raised work surface. Off the breakfast area is a shower room. Also from the breakfast area, a short hallway leads to the dining room with staircase up to the upper floor. A door from the dining room opens into the spacious and cosy lounge with antique wooden floor, open fireplace and inset wood burning stove. There is a door from the lounge which leads into the lobby/hall with double main doors out to the frontage of the property. Another door opposite the hall door leading into bedroom one, double. At the end of the lounge a door, after a couple of steps up, leads to a bright and spacious summer/entertainment room with bar area and wood burning stove. Near the bar area is a small room with the boiler for the gas central heating system. Double patio doors from the summer room open to a private enclosed patio (the hot tub seen in the pictures is not included). This walled courtyard is also accessed from the the front and rear of the home. This beautiful patio resembles a typical Andalucian patio with decorative tiles in the wall, wall plates, raised flower pots, a water feature and a tiled bench seating around the hot tub. A door from the patio leads into a good size store room.
Returning to dining room, an open staircase leads up to the upper floor. Here a long hallway leads to the remaining bedrooms and a family bathroom: Ahead the hallway to the right is bedroom 2, a large double bedroom with air-conditioning unit. To the left is bedroom 3, also a good size double bedroom with two single beds. Immediately after, also to the left, is the family bathroom. Finally, at the end of the hallway, a door opens to the wonderful master suite (4th bedroom). This is a huge room beautifully decorated, with air-conditioning, balcony overlooking the Andalucian patio, and a large en-suite bathroom with both a bath and walk-in shower.
OUTSIDE
To the front of the home, next to the pergola is a garden area with artificial grass. Adjacent 6m x 4m swimming pool surrounded by a sun terrace, ideal for sunbathing and for al fresco dining. Around this area it has been landscaped mainly laid to gravel to the side of the house.
Moving to the rear of the property it has been beautifully landscaped creating an easily maintained garden with a variety of mature trees, plants and shrubs, interspersed with seating areas. Within this garden is a garden shed with a timer pergola in front and a bench. The garden flows through different pathways, one of them takes to a terrace with a gazebo, L-shape sofa and a water feature, an ideal place to relax and enjoy the shade in the summer months. The pathway then takes to the back of the home and to the rear door of the Andalucian patio.
The property benefits from gas central heating with brand new gas boiler, mains electric, water from a nearby fountain (cost is only 100€ per year) and Internet. Brand new pool cover.
This beautiful country house sits on a plot of above 4,4 hectares of land with around 60 olive trees.
A truly stunning detached property, blessed with privacy and tranquillity and yet situated within less than 10 minutes' drive from all the amenities offered by the market town of Velez Rubio. The city of Lorca with its magnificent medieval castle and a huge shopping mall is within a 35 minute drive. The coastal resorts of Águilas and San Juan de Los Terreros, etc are within an hour drive away.
Viewing highly recommended.